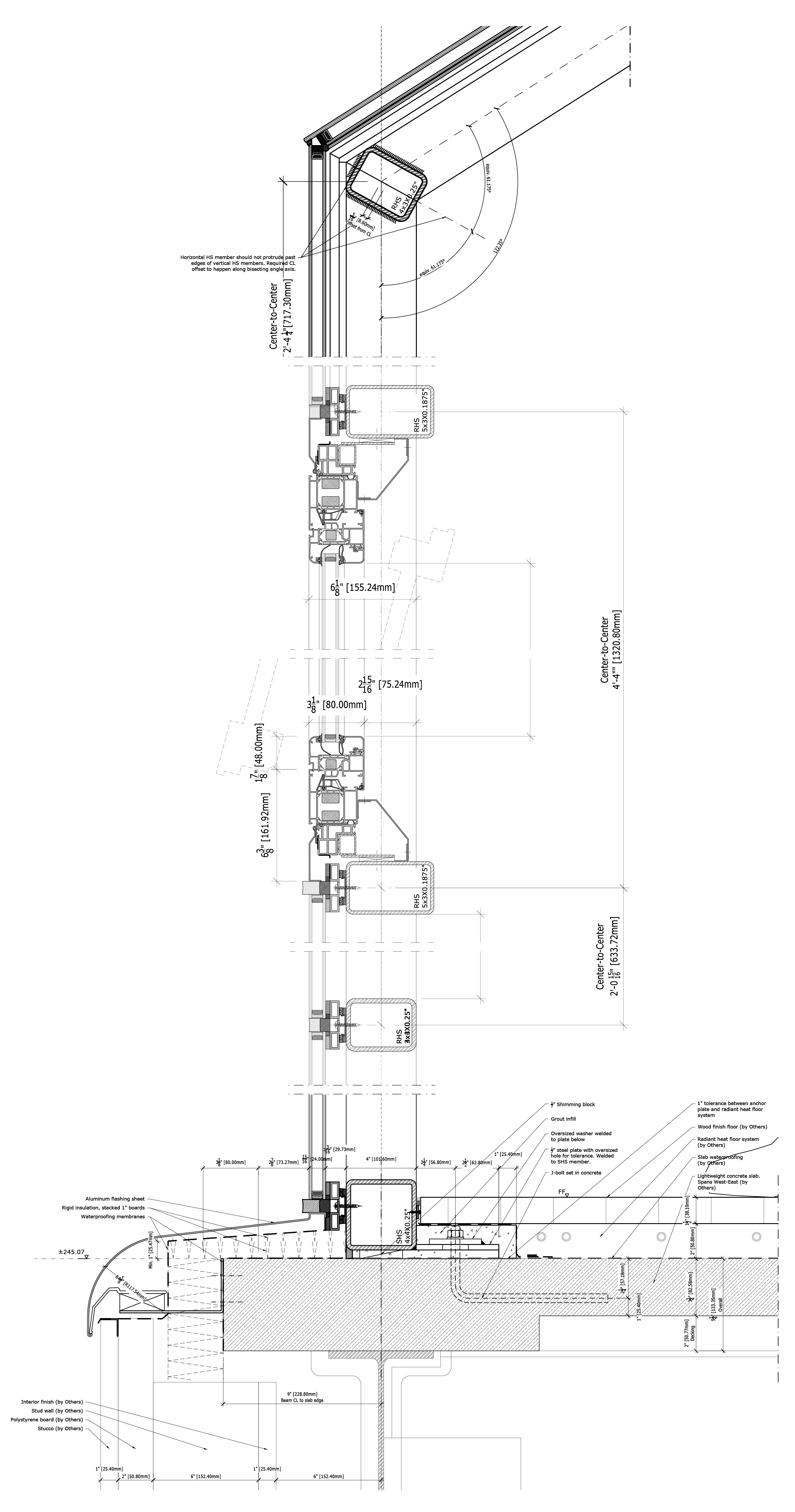
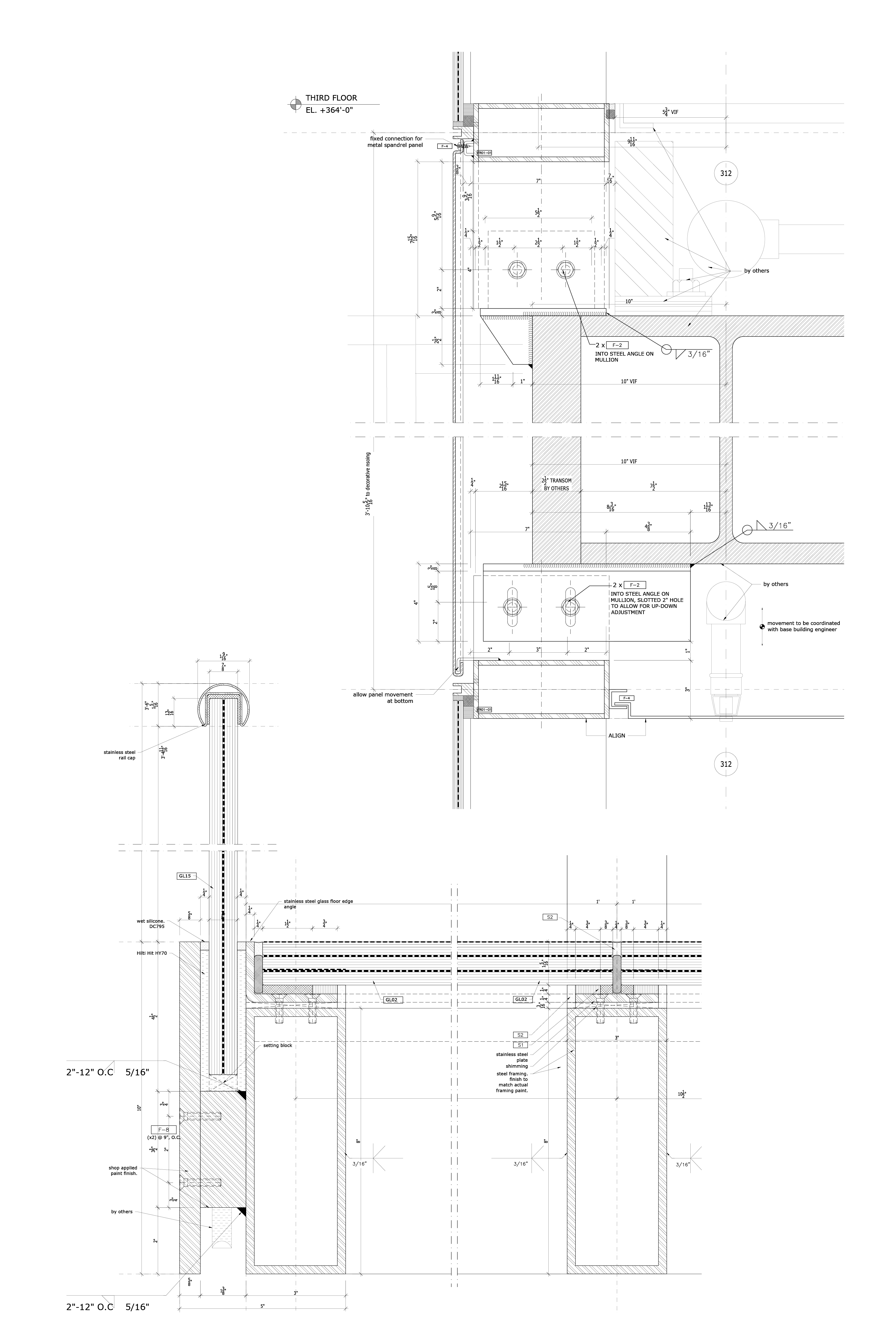
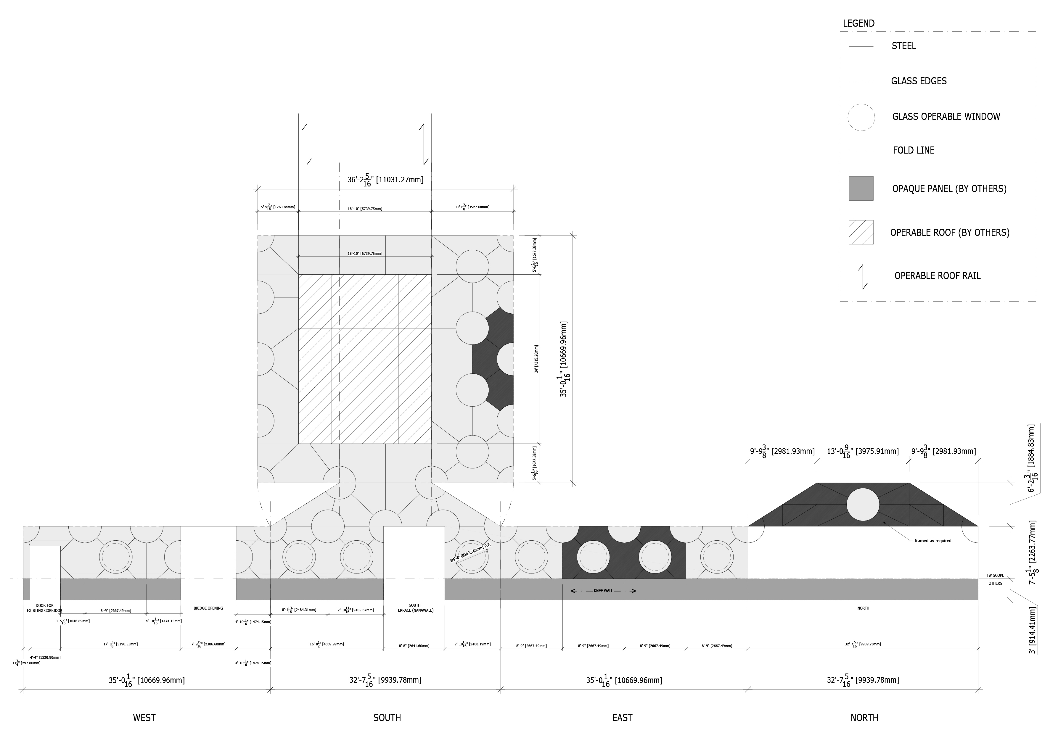
Architectural Details
Building Envelope Design
client: various
my role/scope: architectural design and detailing
type: full time (Laufs Engineering Design)
client: various
my role/scope: architectural design and detailing
type: full time (Laufs Engineering Design)
my role/scope: architectural design and detailing
type: full time (Laufs Engineering Design)











